
Replacement Procedures 4.23 Fluorescent Lamp
4-114 [CONFIDENTIAL] Satellite A50S/TECRA A3X Maintenance Manual (960-534)
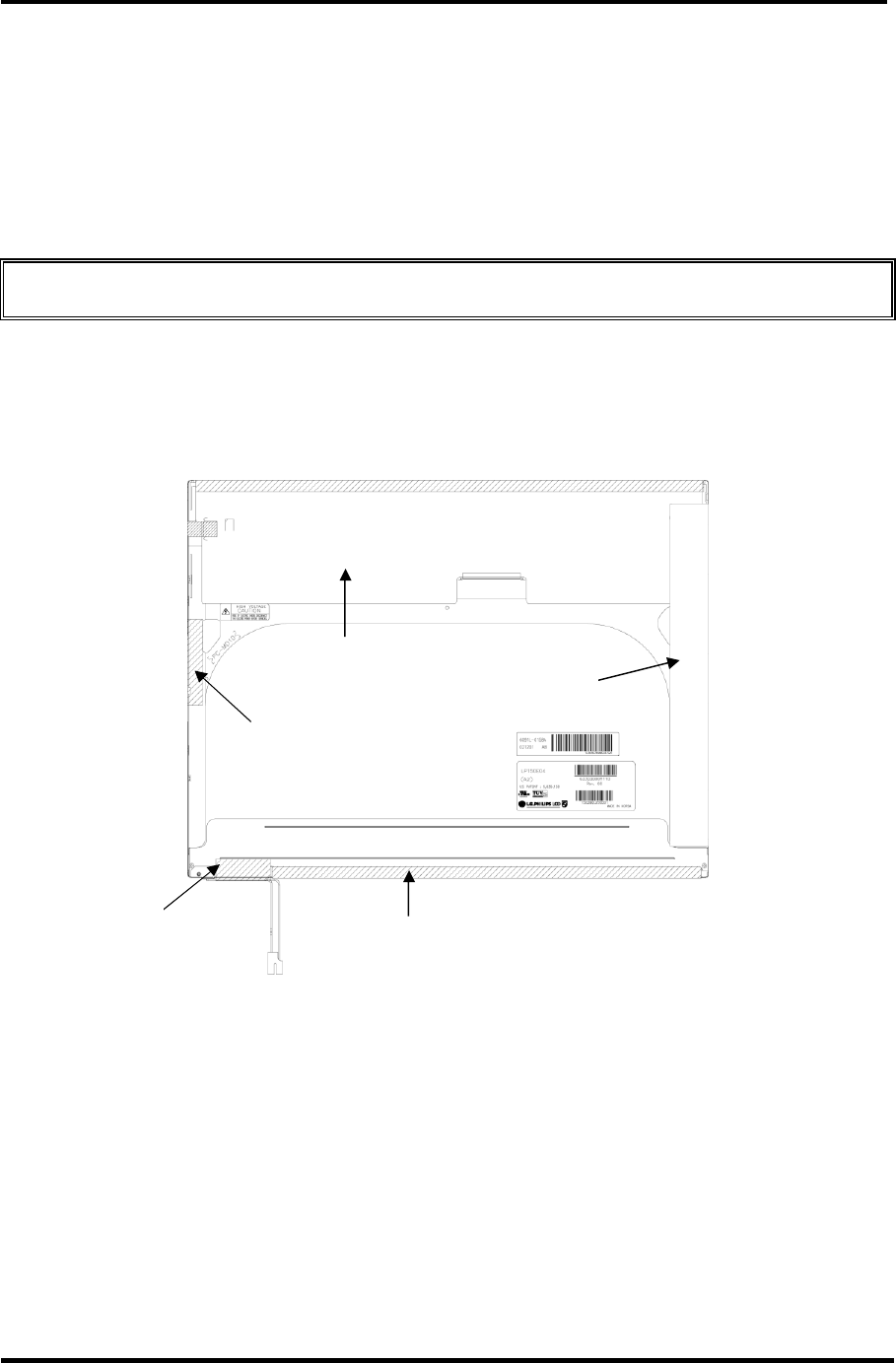
4. Stick the out side tape and cover shield.
1) Install the tape shield and adhesive tape to fix the top case. Be careful not to apply
excessive force to the top case.
2) Install the cover shield (C). Be careful not to apply excessive force to the control
PCB.
CAUTION: Wear anti-static gloves to prevent circuit damage caused by ESC.
3) Install the cover shield (G). Be careful not to apply excessive force to the gate TCP.
4) Stick the adhesive tape to fix the B/L wire. Be careful not to apply excessive force to
the B/L wire.
Figure 4-100 Replacing 15.0 Inch LG.Philips fluorescent lamp (SXGA+) (8)
Cover shield (C)
Tape shield
Adhesive tape
Cover shield (G)
Adhesive tape
Komentáře k této Příručce