
4 Replacement Procedures 4.23 Fluorescent Lamp
4-90 [CONFIDENTIAL] Satellite A50S/TECRA A3X Maintenance Manual (960-534)
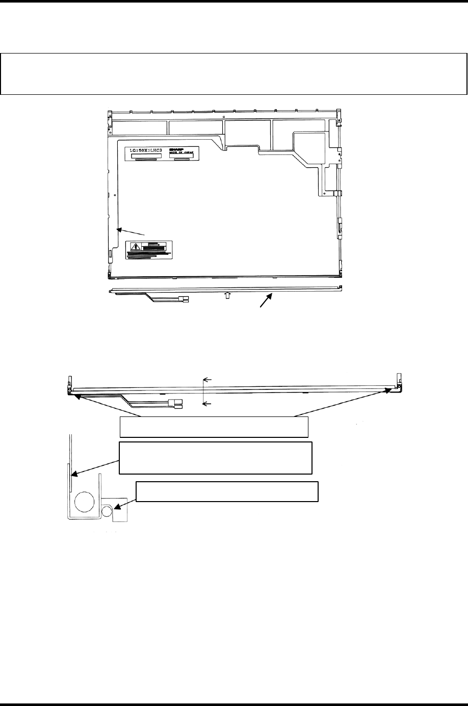
2. Turn the backlight unit face down and install a new lamp unit (R) on the P-chassis.
NOTE: When install the lamp unit (R), be careful not to bend or damage the reflection
sheet.
Figure 4-73 Replacing 15.0 Inch Sharp fluorescent lamp (XGA) (12)
Figure 4-74 Replacing 15.0 Inch Sharp fluorescent lamp (XGA) (13)
Install the lead wire into this groove.
Install the reflection sheet as it is
placed inside the reflector.
the lamp unit without floating.
Komentáře k této Příručce