
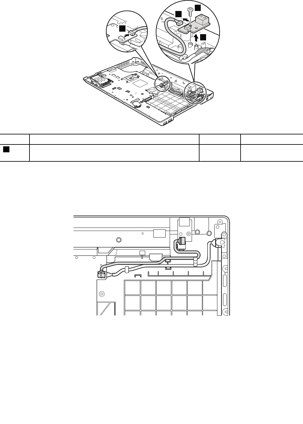
RemovalstepsoftheUSBconnectorboardandUSBcableassembly
StepScrew(quantity)Color
Torque
2
M2×3mm,wafer-head,nylon-coated(1)
Black0.181Nm
(1.85kgf-cm)
Wheninstalling:Makesurethattheconnectorsareattachedrmly.
Cablerouting:RoutetheUSBcableassemblyasshowninthesegures.
ForThinkPadEdge15"andE50:
Chapter8.RemovingorreplacingaFRU89
Komentáře k této Příručce