Sharp AR-810 Uživatelský manuál Strana 28

  • Stažení
  • Přidat do mých příruček
  • Tisk
  • Strana
    / 101
  • Tabulka s obsahem
  • KNIHY
  • Hodnocené. / 5. Na základě hodnocení zákazníků
Zobrazit stránku 27
AR-651/810 TROUBLE SHOOTING 5 - 28
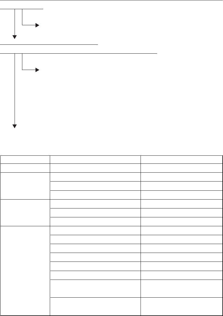
[E55] Paper remaining on the transport path when CRUN is OFF
Open the cover of the unit/area whose picture is flashing on the control panel. Is there any paper on
the transport path?
YES
Remove the paper.
NO
Is the sensor in the jamming area working?
(Perform the input check in the test mode: refer to the following table)
NO
1. Check if the connector of the sensor is disconnected.
2. Check if any of the connectors on the LGC board is disconnected.
3. Check if the connector pins are disconnected and the harnesses are open-circuited.
4. Check if the conductor pattern on the LGC board is shor t- or open-circuited.
5. Replace the sensor.
6. Replace the LGC board.
YES
Replace the LGC board.
Relation between the jamming area and the corresponding sensors
Jamming area Sensor Test mode/Input check
Registration area Registration sensor 03-[ENERGY SAVER]ON/[4][E]
Exit/Reverse area Exit sensor 03-[ENERGY SAVER]OFF/[6][G]
Reversel sensor 1 03-[ENERGY SAVER]OFF/[6][C]
Reversel sensor 2 03-[ENERGY SAVER]OFF/[6][B]
Reverse transport Transport sensor 1 03-[ENERGY SAVER]OFF/[0][C]
area Transport sensor 2 03-[ENERGY SAVER]OFF/[0][A]
Tr a n s p o r t s e n s o r 3 0 3 - [ E N E R G Y S AV E R ] O F F / [ 0 ] [ B ]
Paper feeding 1st cassette feed sensor 03-[ENERGY SAVER]OFF/[2][A]
area 2nd cassette feed sensor 03-[ENERGY SAVER]OFF/[3][A]
3rd cassette/Tandem LCF feed sensor
03-[ENERGY SAVER]OFF/[4][A]
4th cassette/Tandem LCF feed sensor
03-[ENERGY SAVER]OFF/[5][A]
1st cassette transport sensor 03-[ENERGY SAVER]OFF/[2][B]
2nd cassette transport sensor 03-[ENERGY SAVER]OFF/[3][B]
3rd cassette/Tandem LCF transport 03-[ENERGY SAVER]OFF/[4][B]
sensor
4th cassette/Tandem LCF transport 03-[ENERGY SAVER]OFF/[5][B]
sensor
Zobrazit stránku 27
1 2 ... 23 24 25 26 27 28 29 30 31 32 33 ... 100 101

Komentáře k této Příručce

Žádné komentáře