
8 7 6 5 4
3
2 1
A
B
C
D
12345678
D
C
B
A
VCH
+5V
VDD
C205
1000uF
D4
1SR154-400
D3
1SR154-400
ZD1
PTZ6.2A
R8
180
L2
220uH
D2
SFPL-52
R5
10
R6
3.6KF
POWER SUPPLY(MAIN PWB)
Q2
C4153
HEAT SINK
5
6
1
2
3
4
IC2
KA34063A
1
2
CN1
PS CN
F1
FUSE
FROM PS PWB
+24V
GND
C2
220P
R7
1KF
100U/50V
C1
0.1uF
50V
VBT
16V
C206
330uF/16V
C207
330uF/16V
C120
0.1uF/50V
2
1
CN2
BTCN
BT1
BATTERY
R216
150
+5V
R9
2.7K
+24V
<P-OFF CIRCUIT>
D7
1SS353
R12
8.2KG
R13
15KG
R11
2.7K
R10
56K
+24V
+24V
+5V
+5V
+24V
TP
VR1
200K
<DOT PULSE ADJ>
D5
1SS353
1
2
D6
E102
5
6
7
8
4
IC3B
KIA393F
R18
130KF
R17
2K
R16
62K
R15
3.3K
TRG
3-8D
Q3
KRC106S
PE
3-4D
C4
10000P
ZD3
UDZ4.3B
3
2
1
8
4
IC3A
KIA393F
C208
1u/50V
R14
9.1KG
ZD2
UDZ5.1B
/P0FF
3-8C
C3
1000P
1/10
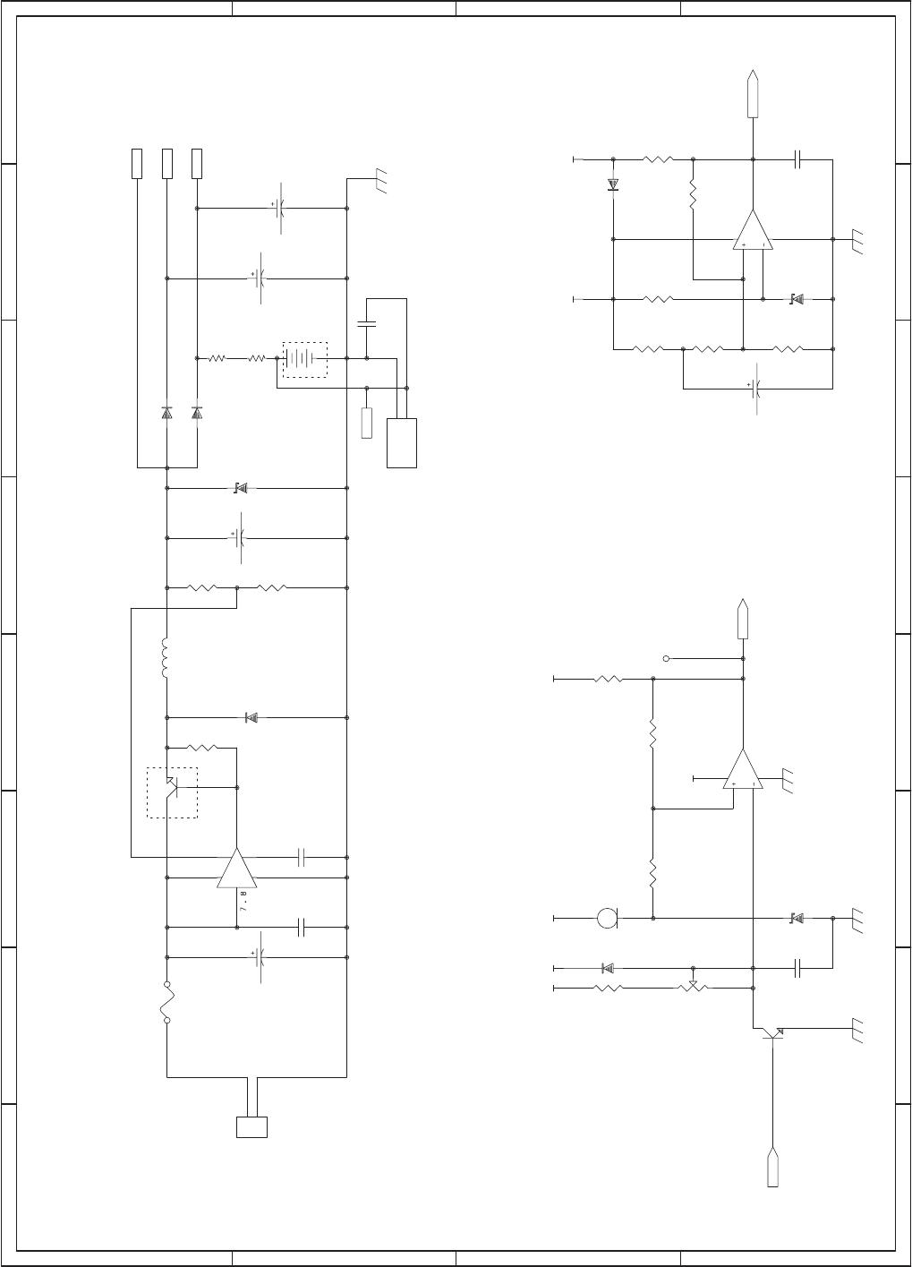
CHAPTER 8. CIRCUIT DIAGRAM & PWB LAYOUT
1. MAIN PWB CIRCUIT DIAGRAM
8 – 1
Komentáře k této Příručce